





福井市加茂河原1丁目から土地付き中古住宅が登場しました!!
徒歩圏内には、桜の絶景トンネルと呼ばれる約2.2キロの『足羽川桜並木』があります。毎朝のウォーキングコースにはこの上ない贅沢ではないでしょうか?
他にも、セブンイレブン福井明里店(徒歩5分)、宮崎整形外科(徒歩6分)、ハニー足羽店(徒歩8分)等があり、明里橋通りにはハーツ学園店(徒歩12分)の他、商業施設が豊富に点在します。
また、公園通りや明里橋通りに近く、アクセスは大変良好です♪
そしてこちらの建物は、1990年に新築されました。その間32年の経年がありますが、今回の販売にあたり、オール電化と内装のリフォーム済みで直ぐに気持ち良くお住まい頂けます。
お問合せの多い、加茂河原エリアです。
是非、いかがでしょうか?
その他、些細なことでも何でもお気軽にお問い合わせください。
お待ちしております。
校区 社北小学校、社北中学校
- 価 格
- 1580万円
- 所在地
-
福井県福井市加茂河原1丁目
福井市加茂河原 - 土地面積
- 62.99坪
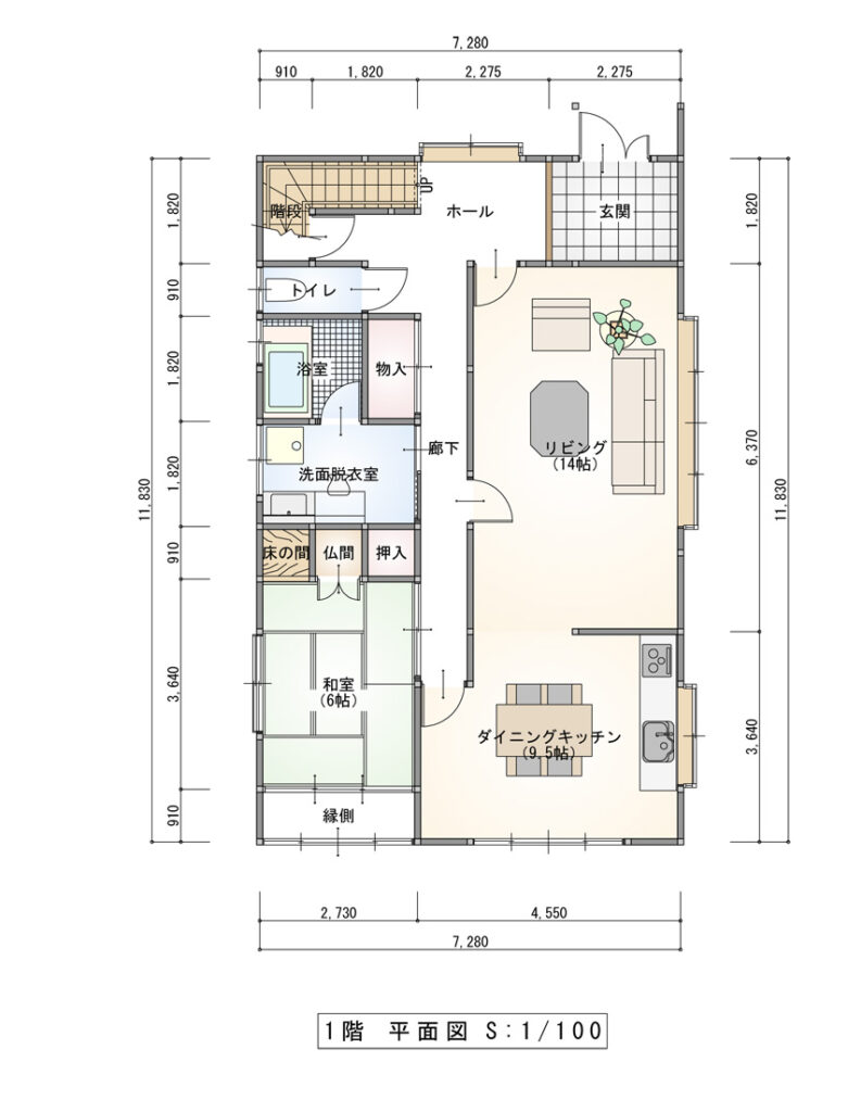
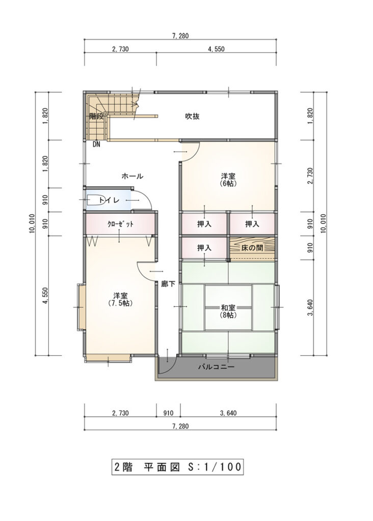
- 建物面積
- 47.97坪
- 交 通
|
|
Loading...
| 築年月 | 1990年 | 新築/中古 | 中古 |
|---|---|---|---|
| 建物面積 | 47.97坪 | 計測方式 | |
| バルコニー | 向き | ||
| 建物階数 | 地上2階 | 部屋階数 | |
| 建物構造 | 木造 | ||
| 間取内容 |
|
||
| 駐車場 | 2台駐車可能 | 取引態様 | 仲介 |
| 引渡/入居時期 | 現況 | 空家 | |
| 地目 | 宅地 | 用途地域 | 準工業 |
| 都市計画 | 市街化調整区域 | 地勢 | 平坦 |
| 土地面積 | 62.99坪 | 土地面積計測方式 | 公簿 |
| 土地面積(㎡) | 208.26m² | ||
| 建ぺい率 | 60% | 容積率 | 200% |
| 土地権利 | 接道状況 | 一方 | |
| 接道方向1 | 北 | 接道間口1 | 9.0m |
| 接道種別1 | 公道 | 接道幅員1 | 約4m |
| 周辺環境 |
社北小学校 社北中学校 |
||
| 設備・条件 | ※内装リフォーム済。オール電化住宅。 | ||
| 物件番号 | 2214 | ||
※物件掲載内容と現況に相違がある場合は現況を優先と致します。




























