




※5月8日1980万⇒1700万に値下げしました!!
こちらがあるのは、越前町織田地区の劒神社(越前二宮)があるゆかりの地です。
そんな自然あふれる田舎町から築浅の二世帯住宅が登場しました♪
最寄りのバロー織田店(メルシ)には車で6分、そしてその近郊には、クスリのアオキにゲンキー、ファミリーマートやローソン、8番らーめん、コインランドリー等が点在します。
そしてこちらの建物は、2015年に新築された9年目の築浅の2世帯住宅になります。
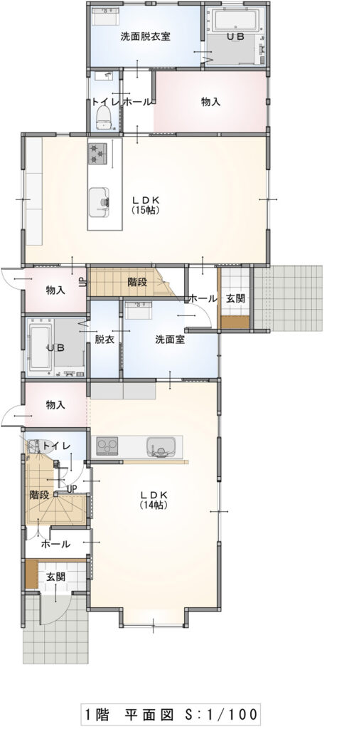
1Fにリビング・キッチン・浴室・トイレがそれぞれ別々という贅沢ぶり♪
2Fに続く階段も別々なので、完全なる二世帯プライベート確保が可能になります。
校区は萩野小学校と織田中学校です。
特に萩野小学校は少人数なので、先生達の目も行き届き、子供たちも毎日の学校生活を楽しく、生き生きと過ごしています。
お近くにお住まいの方、二世帯住宅をお探しの方、是非いかがでしょうか?
その他、些細なことでも何でもお気軽にお問い合わせください。
お待ちしております。
校区 萩野小学校、織田中学校
- 価 格
- 1700万円
- 所在地
-
福井県丹生郡越前町細野
- 土地面積
- 100坪
- 建物面積
- 49.98坪
- 交 通
|
|
Loading...
| 築年月 | 2015年11月 | 新築/中古 | 中古 |
|---|---|---|---|
| 建物面積 | 49.98坪 | 計測方式 | |
| バルコニー | 向き | ||
| 建物階数 | 地上2階 | 部屋階数 | |
| 建物構造 | 木造 | ||
| 間取内容 |
1階LDK14畳 1階LDK15畳 2階洋室7.5畳 2階洋室6.5畳 2階洋室6畳 2階洋室5.5畳 2階S2畳 4SLLDDKK |
||
| 駐車場 | 4台駐車可能 | 取引態様 | 仲介 |
| 引渡/入居時期 | 相談 | 現況 | 空家 |
| 地目 | 宅地 | 用途地域 | 無指定 |
| 都市計画 | 非線引き区域 | 地勢 | |
| 土地面積 | 100坪 | 土地面積計測方式 | 公簿 |
| 土地面積(㎡) | 330.58m² | ||
| 建ぺい率 | 60% | 容積率 | 200% |
| 土地権利 | 所有権 | 接道状況 | 一方 |
| 接道方向1 | 南 | 接道間口1 | 9.51m |
| 接道種別1 | 公道 | 接道幅員1 | 6m |
| 周辺環境 |
萩野小学校 織田中学校 |
||
| 設備・条件 | IHコンロ 三口コンロ システムキッチン カウンターキッチン 給湯 追い焚き 洗髪洗面化粧台 独立洗面台 浴室乾燥機 ユニットバス バス・トイレ別 温水洗浄便座 室内洗濯機置き場 駐車場有 バルコニー フローリング バリアフリー オール電化 | ||
| 物件番号 | 2225 | ||
※物件掲載内容と現況に相違がある場合は現況を優先と致します。






































