






こちらがあるのは、バロー丸岡店から徒歩で1分の閑静な住宅街の一画です。
近郊には、東陽公園(徒歩1分)、巽町公園(徒歩1分)、ウエルシア坂井丸岡店(徒歩2分)、わっかこども園(徒歩4分)、ゲンキー猪爪店(徒歩6分)、クスリのアオキ丸岡店(徒歩6分)がある好環境♪
また、8号線・丸岡ICには車で4分、他にも勝山・丸岡線にも近く、交通のアクセスも大変良好です♪
その他、平章小学校には徒歩8分、丸岡中学校に徒歩14分、丸岡高校には徒歩10分です。
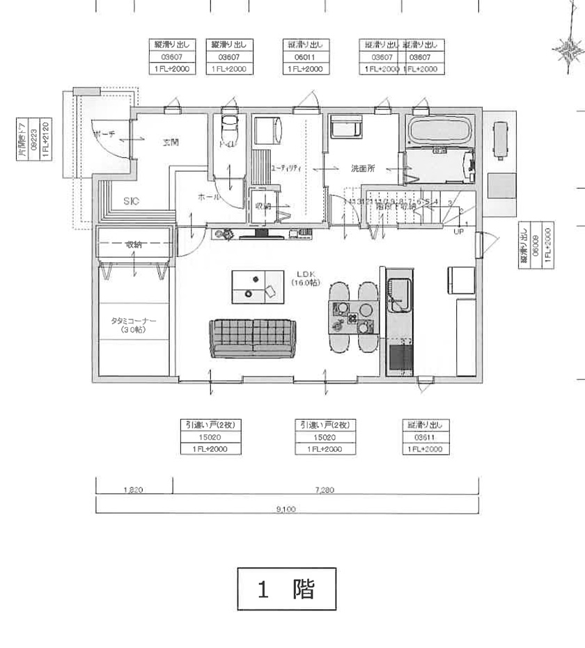
そしてこちらの2号棟は、16帖のリビングと畳コーナー(3帖)が一体になってとても広々とした空間を実現♪
更に玄関横にはシューズインクローゼットが設置され、いつもすっきりと清潔感を保つことができます。
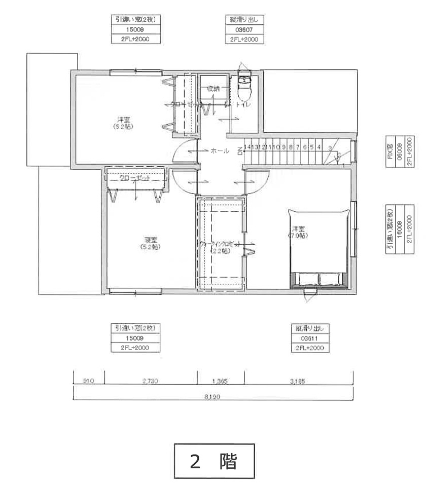
また2階では、7帖の寝室に2.2帖のウォークインクローゼット付き、更に5.2帖の洋室が二部屋(各クローゼット完備)あります。
是非、一度内覧されてはいかがでしょうか?
その他、些細なことでも何でもお気軽にお問い合わせください。
お待ちしております。
校区 平章小学校、丸岡中学校
- 価 格
- 2980万円
- 所在地
-
福井県坂井市丸岡町巽3丁目
- 土地面積
- 65.99坪
- 建物面積
- 30.37坪
- 交 通
|
|
Loading...
| 築年月 | 2023年 | 新築/中古 | 新築・未入居 |
|---|---|---|---|
| 建物面積 | 30.37坪 | 計測方式 | |
| バルコニー | 向き | ||
| 建物階数 | 地上2階 | 部屋階数 | |
| 建物構造 | 木造 | ||
| 間取内容 |
1階LDK16畳 1階S3畳 2階洋室7畳 2階洋室5.2畳 2階洋室5.2畳 2階S2.2畳 |
||
| 駐車場 | 4台駐車可能 | 取引態様 | 専任 |
| 引渡/入居時期 | 相談 | 現況 | |
| 地目 | 宅地 | 用途地域 | 準工業 |
| 都市計画 | 非線引き区域 | 地勢 | 平坦 |
| 土地面積 | 65.99坪 | 土地面積計測方式 | 公簿 |
| 土地面積(㎡) | 218.15m² | ||
| 建ぺい率 | 60% | 容積率 | 200% |
| 土地権利 | 所有権 | 接道状況 | 一方 |
| 接道方向1 | 西 | 接道間口1 | 13.40m |
| 接道種別1 | 接道幅員1 | 6m | |
| 周辺環境 |
平章小学校 丸岡中学校 |
||
| 設備・条件 | 三口コンロ システムキッチン カウンターキッチン 食器洗い乾燥機 洗髪洗面化粧台 ユニットバス 浴室1.6x2.0m以上 温水洗浄便座 W.INクローゼット 室内洗濯機置き場 公営水道 排水下水 駐車場有 フローリング オール電化 | ||
| 物件番号 | 2240 | ||
※物件掲載内容と現況に相違がある場合は現況を優先と致します。































