









あのプレミスト大手さくら通り分譲マンションから2LDK+S(10階)が登場します!!
近くには県庁、国際交流会館(徒歩3分)や新福井駅(徒歩5分)、福井駅(徒歩7分)、田中病院(徒歩4分)、福井中央郵便局(徒歩7分)のある好立地で一目でプレミスト大手さくら通りだと分かる建物です。
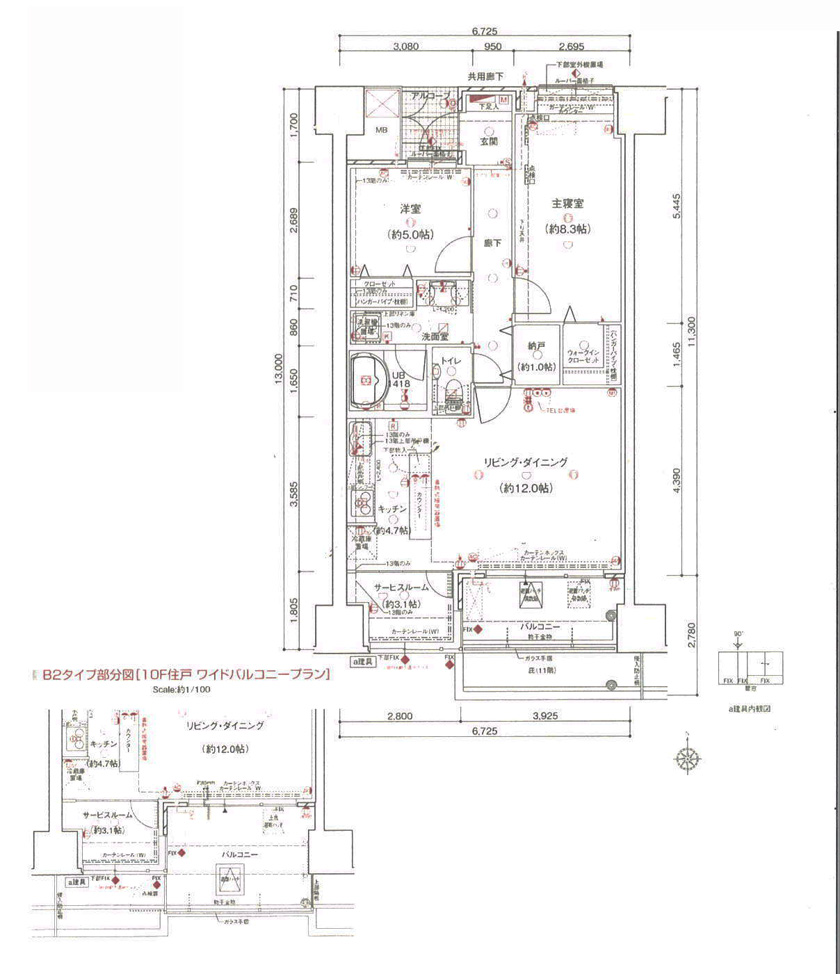
10階のワイドバルコニーからは春は足羽川の桜並木や県庁の桜、夏にはフェニックス祭の花火が観賞可能です。
現在居住中の為、多くの写真は掲載出来ませんが、内観確認をご希望の方はお問い合わせ下さいませ。
その他、順化小学校にも徒歩4分、300mと安心の距離、また中央公園にも徒歩8分なので子育て世代の方にもお勧めです♪
是非いかがでしょうか?
その他、些細なことでも何でもお気軽にお問い合わせください。
お待ちしております。
校区 順化小学校、明道中学校
- 価 格
- 3100万円
- 所在地
-
福井県福井市大手2丁目
プレミスト大手さくら通り - 土地面積
- 516.8(区分所有権)坪
- 建物面積
- 22.99坪
- 交 通
-
JR北陸本線福井駅 徒歩600m 徒歩7分
えちぜん鉄道三国芦原線新福井駅 徒歩350m 徒歩5分
|
|
Loading...
| 築年月 | 2011年2月 | 新築/中古 | 中古 |
|---|---|---|---|
| 建物面積 | 22.99坪 | 計測方式 | 壁芯 |
| バルコニー | 10.69m² | 向き | |
| 建物階数 | 地上14階 | 部屋階数 | 10階 |
| 部屋/区画番号 | 1002 | 総戸/区画数 | |
| 建物構造 | RC | ||
| 管理形態 | 全部委託 | ||
| 間取内容 |
LD12畳 K4.7畳 洋室8.3畳 洋室5.0畳 S3.1畳 |
||
| 住宅保険料 | 修繕積立金 | 7752円 | |
| 駐車場 | 駐車場1台有り | 取引態様 | 専任 |
| 引渡/入居時期 | 期日指定 R5年冬頃 | 現況 | 土地:更地 |
| 地目 | 用途地域 | 商業 | |
| 都市計画 | 市街化区域 | 地勢 | 平坦 |
| 土地面積 | 516.8(区分所有権)坪 | 土地面積計測方式 | 公簿 |
| 土地面積(㎡) | 1708.55m² | ||
| 建ぺい率 | 80% | 容積率 | 400% |
| 土地権利 | 所有権 | 接道状況 | |
| 周辺環境 |
順化小学校 明道中学校 |
||
| 設備・条件 | ペット可能 IHコンロ カウンターキッチン 洗髪洗面化粧台 独立洗面台 ユニットバス 浴室1.6x2.0m以上 バス・トイレ別 温水洗浄便座 W.INクローゼット 室内洗濯機置き場 CATV TVドアホン 公営水道 排水下水 エレベータ 宅配ボックス 駐輪場 バイク置き場 フローリング バリアフリー ・自転車置場 200円/台/月・駐車場契約者にはトランクルームが付いてきます・現況有姿でのお引渡しとなります。 | ||
| 物件番号 | 2274 | ||
※物件掲載内容と現況に相違がある場合は現況を優先と致します。

















